2005 Foxwood Dr, Eureka, CA, 95503






2005 Foxwood Dr, Eureka, CA, 95503

2005 Foxwood Dr, Eureka, CA, 95503






Your Trusted
Real Estate Agents
Price:
Price:
$469,000.00
$469,000.00
General
Information
General
Information
3
3
Beds
Beds
2
2
Baths
Baths
1,437
1,437
Sq. Ft.
Sq. Ft.
0.1
0.1
Lot Size
Lot Size
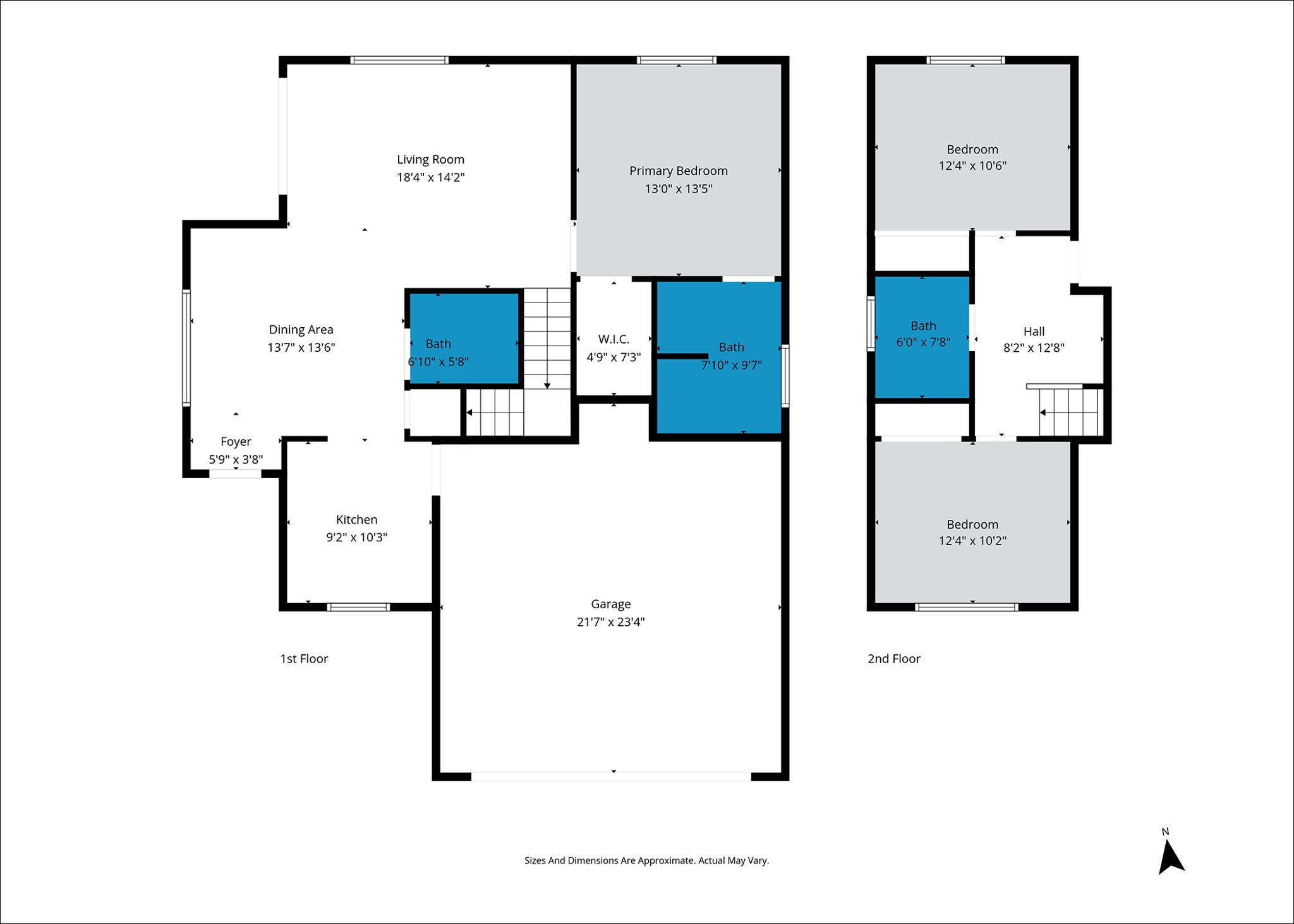
Located in the Sunny Cutten area in the Foxwood Estates, a gated community for those 55 years and older. For your convenience the primary suite is located on the main floor with a chairlift to reach the other two bedrooms and bath upstairs with ease. The main floor has several rooms recently painted, beautiful marble slab counters with natural edge installed in the kitchen, new stainless appliances and warm toned LVP flooring throughout. Enjoy a low-maintenance lifestyle, as the HOA takes care of front yard landscape, as well as gates and road upkeep. This is the one if you're looking for a welcoming and safe community and a home designed for easy living!
Located in the Sunny Cutten area in the Foxwood Estates, a gated community for those 55 years and older. For your convenience the primary suite is located on the main floor with a chairlift to reach the other two bedrooms and bath upstairs with ease. The main floor has several rooms recently painted, beautiful marble slab counters with natural edge installed in the kitchen, new stainless appliances and warm toned LVP flooring throughout. Enjoy a low-maintenance lifestyle, as the HOA takes care of front yard landscape, as well as gates and road upkeep. This is the one if you're looking for a welcoming and safe community and a home designed for easy living!





Listing courtesy of
Listing courtesy of
Kathi Ray
Kathi Ray
RE/MAX Humboldt Realty
RE/MAX Humboldt Realty
Interested in this home?
Stay in control of how, when, and where your home is marketed with a strategy tailored to fit your needs.
Interested in this home?
Stay in control of how, when, and where your home is marketed with a strategy tailored to fit your needs.
Interested in this home?
Stay in control of how, when, and where your home is marketed with a strategy tailored to fit your needs.
Lear More About
The Area
Eureka
Situated on Humboldt Bay, Eureka combines a blend of Victorian architecture, a working waterfront, and dynamic neighborhoods to make it a real estate center in Humboldt County.

b
Testimonials
Our Clients
Our clients consistently share that working with our team feels personal, professional, and truly supportive. From helping sellers get offers after months on the market to guiding first-time buyers through every step, our agents are praised for their local expertise, responsiveness, and genuine care for every client’s goals.
Q
FREQUENT QUESTIONS
Frequently Asked Questions
Have questions about buying or selling a home? These are the most common ones to help you navigate the process with ease. If you need more details, feel free to reach out!
Where do I begin with home searching?
Will I receive alerts when homes hit the market?
Do you work with first-time buyers?
How much should I budget for closing costs?
Do you help with inspections and referrals to local services?
How soon can I view homes in person?
Q
FREQUENT QUESTIONS
Frequently Asked Questions
Have questions about buying or selling a home? These are the most common ones to help you navigate the process with ease. If you need more details, feel free to reach out!
Where do I begin with home searching?
Will I receive alerts when homes hit the market?
Do you work with first-time buyers?
How much should I budget for closing costs?
Do you help with inspections and referrals to local services?
How soon can I view homes in person?
Q
FREQUENT QUESTIONS
Frequently Asked Questions
Have questions about buying or selling a home? These are the most common ones to help you navigate the process with ease. If you need more details, feel free to reach out!
Where do I begin with home searching?
Will I receive alerts when homes hit the market?
Do you work with first-time buyers?
How much should I budget for closing costs?
Do you help with inspections and referrals to local services?
How soon can I view homes in person?


