507 2nd St, Eureka, CA, 95501






507 2nd St, Eureka, CA, 95501

507 2nd St, Eureka, CA, 95501








Your Trusted
Real Estate Agent
Price:
Price:
Price:
$1,250,000.00
$1,250,000.00
$1,250,000.00
General
Information
General
Information
General
Information
0
0
0
Beds
Beds
Beds
0
0
0
Baths
Baths
Baths
4,400
4,400
4,400
Sq. Ft.
Sq. Ft.
Sq. Ft.
0.05
0.05
0.05
Lot Size
Lot Size
Lot Size
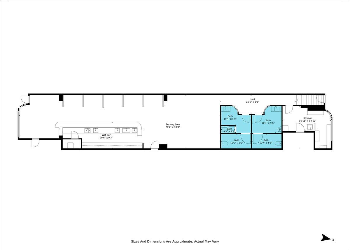
The Pearl Building with Luxury Apartment and Restaurant Five Eleven. Welcome to The Pearl, a stunning property rich in history and architectural significance. Originally built in 1872 as the Crystal Palace salon, this iconic building underwent a transformative Art Deco renovation in the 1950's. In 2004, The Pearl was completely restored, blending the best of old-world charm with modern luxury. The front 2,200 sqft of the building has been meticulously restored, including a new foundation and earthquake retrofit, with every detail upgraded to meet current commercial standards. New framing, plumbing, electrical, and a 2-hour fire-rated structure ensure both safety and longevity. The interior features poured concrete floors, both upstairs and down, with radiant heat. The rear 2,200 sqft of the building also constructed in 2004, offers three stories of modern luxury, crowned by a penthouse and expansive roof deck that provided breathtaking views of the marina, redwoods, and Pacific Ocean. The location is unbeatable, nestled in the heart of Historic Old Town, just one building off the gazebo and only a block from the waterfront. The first floor showcases a sleek, modern design with custom finishes throughout, while the second floor is a spacious 2,200 sqft home, featuring 16-foot ceilings, glass railings, and exotic granite countertops. The primary bedroom boasts stunning bay views, making it the perfect sanctuary to enjoy the sights and sounds of this extraordinary location. Included in the sale is Restaurant Five Eleven, a modern fine-dining restaurant and bar featuring farm -to-table North Pacific cuisine, an extensive wine selection, and a diverse menu of signature cocktails. This well-established dining destination enhances the property's value and offers exceptional potential for continued operation or creative reimagining. Learn more about the restaurant at www.fiveeleveneureka.com The Pearl combines the grandeur of the past with the conveniences of modern living, offering a one-of-a-kind opportunity to own a piece of history in the most desirable part of town. Short Term Vacation Rental Permit completed and approved!
The Pearl Building with Luxury Apartment and Restaurant Five Eleven. Welcome to The Pearl, a stunning property rich in history and architectural significance. Originally built in 1872 as the Crystal Palace salon, this iconic building underwent a transformative Art Deco renovation in the 1950's. In 2004, The Pearl was completely restored, blending the best of old-world charm with modern luxury. The front 2,200 sqft of the building has been meticulously restored, including a new foundation and earthquake retrofit, with every detail upgraded to meet current commercial standards. New framing, plumbing, electrical, and a 2-hour fire-rated structure ensure both safety and longevity. The interior features poured concrete floors, both upstairs and down, with radiant heat. The rear 2,200 sqft of the building also constructed in 2004, offers three stories of modern luxury, crowned by a penthouse and expansive roof deck that provided breathtaking views of the marina, redwoods, and Pacific Ocean. The location is unbeatable, nestled in the heart of Historic Old Town, just one building off the gazebo and only a block from the waterfront. The first floor showcases a sleek, modern design with custom finishes throughout, while the second floor is a spacious 2,200 sqft home, featuring 16-foot ceilings, glass railings, and exotic granite countertops. The primary bedroom boasts stunning bay views, making it the perfect sanctuary to enjoy the sights and sounds of this extraordinary location. Included in the sale is Restaurant Five Eleven, a modern fine-dining restaurant and bar featuring farm -to-table North Pacific cuisine, an extensive wine selection, and a diverse menu of signature cocktails. This well-established dining destination enhances the property's value and offers exceptional potential for continued operation or creative reimagining. Learn more about the restaurant at www.fiveeleveneureka.com The Pearl combines the grandeur of the past with the conveniences of modern living, offering a one-of-a-kind opportunity to own a piece of history in the most desirable part of town. Short Term Vacation Rental Permit completed and approved!
The Pearl Building with Luxury Apartment and Restaurant Five Eleven. Welcome to The Pearl, a stunning property rich in history and architectural significance. Originally built in 1872 as the Crystal Palace salon, this iconic building underwent a transformative Art Deco renovation in the 1950's. In 2004, The Pearl was completely restored, blending the best of old-world charm with modern luxury. The front 2,200 sqft of the building has been meticulously restored, including a new foundation and earthquake retrofit, with every detail upgraded to meet current commercial standards. New framing, plumbing, electrical, and a 2-hour fire-rated structure ensure both safety and longevity. The interior features poured concrete floors, both upstairs and down, with radiant heat. The rear 2,200 sqft of the building also constructed in 2004, offers three stories of modern luxury, crowned by a penthouse and expansive roof deck that provided breathtaking views of the marina, redwoods, and Pacific Ocean. The location is unbeatable, nestled in the heart of Historic Old Town, just one building off the gazebo and only a block from the waterfront. The first floor showcases a sleek, modern design with custom finishes throughout, while the second floor is a spacious 2,200 sqft home, featuring 16-foot ceilings, glass railings, and exotic granite countertops. The primary bedroom boasts stunning bay views, making it the perfect sanctuary to enjoy the sights and sounds of this extraordinary location. Included in the sale is Restaurant Five Eleven, a modern fine-dining restaurant and bar featuring farm -to-table North Pacific cuisine, an extensive wine selection, and a diverse menu of signature cocktails. This well-established dining destination enhances the property's value and offers exceptional potential for continued operation or creative reimagining. Learn more about the restaurant at www.fiveeleveneureka.com The Pearl combines the grandeur of the past with the conveniences of modern living, offering a one-of-a-kind opportunity to own a piece of history in the most desirable part of town. Short Term Vacation Rental Permit completed and approved!










Listing courtesy of
Listing courtesy of
Listing courtesy of
Interested in this home?
Stay in control of how, when, and where your home is marketed with a strategy tailored to fit your needs.
Interested in this home?
Stay in control of how, when, and where your home is marketed with a strategy tailored to fit your needs.
Interested in this home?
Stay in control of how, when, and where your home is marketed with a strategy tailored to fit your needs.

b
Testimonials
Our Clients
Our clients consistently share that working with our team feels personal, professional, and truly supportive. From helping sellers get offers after months on the market to guiding first-time buyers through every step, our agents are praised for their local expertise, responsiveness, and genuine care for every client’s goals.
Q
FREQUENT QUESTIONS
Frequently Asked Questions
Have questions about buying or selling a home? These are the most common ones to help you navigate the process with ease. If you need more details, feel free to reach out!
Where do I begin with home searching?
Will I receive alerts when homes hit the market?
Do you work with first-time buyers?
How much should I budget for closing costs?
Do you help with inspections and referrals to local services?
How soon can I view homes in person?
Q
FREQUENT QUESTIONS
Frequently Asked Questions
Have questions about buying or selling a home? These are the most common ones to help you navigate the process with ease. If you need more details, feel free to reach out!
Where do I begin with home searching?
Will I receive alerts when homes hit the market?
Do you work with first-time buyers?
How much should I budget for closing costs?
Do you help with inspections and referrals to local services?
How soon can I view homes in person?
Q
FREQUENT QUESTIONS
Frequently Asked Questions
Have questions about buying or selling a home? These are the most common ones to help you navigate the process with ease. If you need more details, feel free to reach out!
Where do I begin with home searching?
Will I receive alerts when homes hit the market?
Do you work with first-time buyers?
How much should I budget for closing costs?
Do you help with inspections and referrals to local services?
How soon can I view homes in person?


