Our Company
Listings
bY lOCATION
Categories
Tools

230 Warren Creek Rd, Arcata, CA, 95521

230 Warren Creek Rd, Arcata, CA, 95521

230 Warren Creek Rd, Arcata, CA, 95521

Your Trusted
Real Estate Agent

Price:

Price:

Price:

$719,000.00

$719,000.00

$719,000.00

General

Information

General

Information

General

Information

3

3

3

Beds

Beds

Beds

2

2

2

Baths

Baths

Baths

1,719

1,719

1,719

Sq. Ft.

Sq. Ft.

Sq. Ft.

2.52

2.52

2.52

Lot Size

Lot Size

Lot Size

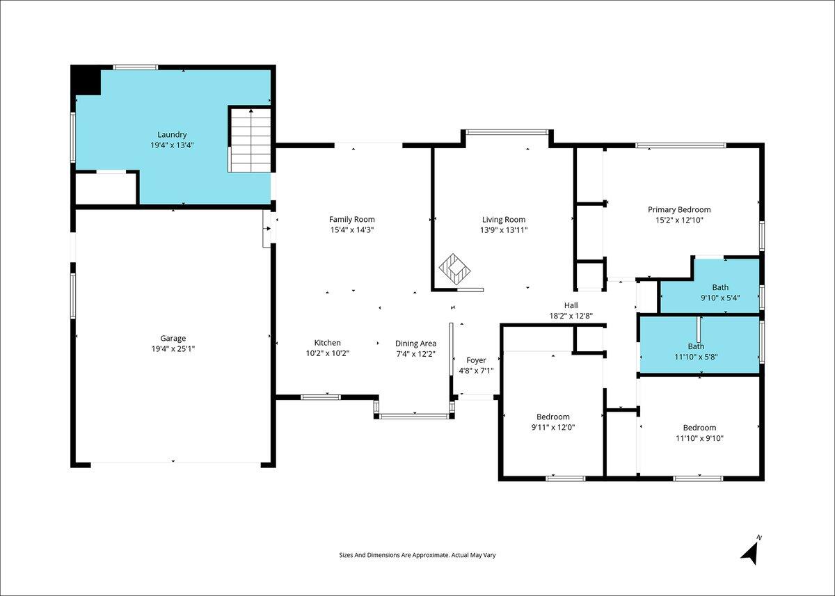
Welcome to 230 Warren Creek Road, a beautiful 3 bedroom, 2 bathroom home set on 2.52 flat, usable acres in one of Arcata's most desirable rural pockets. This property offers the perfect blend of privacy, space, and versatility. The main home offers a comfortable, functional layout with generous living spaces. Step out the back porch to enjoy a peaceful setting highlighted by beautiful bonsai trees, creating a unique and serene outdoor retreat. Beyond the home, the land features established fruit and nut trees, open usable acreage, and plenty of room for gardening, or animals. Above the garage is a studio ADU, ideal for rental income, extended family, guests, or a private office or creative space. ADU is now available to see.

Welcome to 230 Warren Creek Road, a beautiful 3 bedroom, 2 bathroom home set on 2.52 flat, usable acres in one of Arcata's most desirable rural pockets. This property offers the perfect blend of privacy, space, and versatility. The main home offers a comfortable, functional layout with generous living spaces. Step out the back porch to enjoy a peaceful setting highlighted by beautiful bonsai trees, creating a unique and serene outdoor retreat. Beyond the home, the land features established fruit and nut trees, open usable acreage, and plenty of room for gardening, or animals. Above the garage is a studio ADU, ideal for rental income, extended family, guests, or a private office or creative space. ADU is now available to see.

Welcome to 230 Warren Creek Road, a beautiful 3 bedroom, 2 bathroom home set on 2.52 flat, usable acres in one of Arcata's most desirable rural pockets. This property offers the perfect blend of privacy, space, and versatility. The main home offers a comfortable, functional layout with generous living spaces. Step out the back porch to enjoy a peaceful setting highlighted by beautiful bonsai trees, creating a unique and serene outdoor retreat. Beyond the home, the land features established fruit and nut trees, open usable acreage, and plenty of room for gardening, or animals. Above the garage is a studio ADU, ideal for rental income, extended family, guests, or a private office or creative space. ADU is now available to see.

Listing courtesy of

Listing courtesy of

Listing courtesy of

Interested in this home?

Stay in control of how, when, and where your home is marketed with a strategy tailored to fit your needs.

By submitting this form you agree that Forbes & Associates - Sarah Corliss, its affiliates or associated third parties may contact you, including with calls or texts by automated means. You also agree to our Terms of Service and Privacy Policy. Message/data rates may apply. Consent is not a condition to access real estate services.

Interested in this home?

Stay in control of how, when, and where your home is marketed with a strategy tailored to fit your needs.

By submitting this form you agree that Forbes & Associates - Sarah Corliss, its affiliates or associated third parties may contact you, including with calls or texts by automated means. You also agree to our Terms of Service and Privacy Policy. Message/data rates may apply. Consent is not a condition to access real estate services.

Interested in this home?

Stay in control of how, when, and where your home is marketed with a strategy tailored to fit your needs.

By submitting this form you agree that Forbes & Associates - Sarah Corliss, its affiliates or associated third parties may contact you, including with calls or texts by automated means. You also agree to our Terms of Service and Privacy Policy. Message/data rates may apply. Consent is not a condition to access real estate services.

Lear More About

The Area

Arcata

Arcata offers the quaintness of a small town, the vibrancy of a college town, and the almost-too-good-to-be-true accessibility of both ocean beaches and ancient redwood forests. These characteristics make it one of Humboldt County's most desired real estate markets.

b

Testimonials

Our Clients

Our clients consistently share that working with our team feels personal, professional, and truly supportive. From helping sellers get offers after months on the market to guiding first-time buyers through every step, our agents are praised for their local expertise, responsiveness, and genuine care for every client’s goals.

Q

FREQUENT QUESTIONS

Frequently Asked Questions

Have questions about buying or selling a home? These are the most common ones to help you navigate the process with ease. If you need more details, feel free to reach out!

Where do I begin with home searching?

Will I receive alerts when homes hit the market?

Do you work with first-time buyers?

How much should I budget for closing costs?

Do you help with inspections and referrals to local services?

How soon can I view homes in person?

Q

FREQUENT QUESTIONS

Frequently Asked Questions

Have questions about buying or selling a home? These are the most common ones to help you navigate the process with ease. If you need more details, feel free to reach out!

Where do I begin with home searching?

Will I receive alerts when homes hit the market?

Do you work with first-time buyers?

How much should I budget for closing costs?

Do you help with inspections and referrals to local services?

How soon can I view homes in person?

Q

FREQUENT QUESTIONS

Frequently Asked Questions

Have questions about buying or selling a home? These are the most common ones to help you navigate the process with ease. If you need more details, feel free to reach out!

Where do I begin with home searching?

Will I receive alerts when homes hit the market?

Do you work with first-time buyers?

How much should I budget for closing costs?

Do you help with inspections and referrals to local services?

How soon can I view homes in person?