Our Company
Listings
bY lOCATION
Categories
Tools

2050 11th St, Arcata, CA, 95521

2050 11th St, Arcata, CA, 95521

2050 11th St, Arcata, CA, 95521

Your Trusted
Real Estate Agent

Price:

Price:

Price:

$515,000.00

$515,000.00

$515,000.00

General

Information

General

Information

General

Information

4

4

4

Beds

Beds

Beds

3

3

3

Baths

Baths

Baths

1,738

1,738

1,738

Sq. Ft.

Sq. Ft.

Sq. Ft.

0.14

0.14

0.14

Lot Size

Lot Size

Lot Size

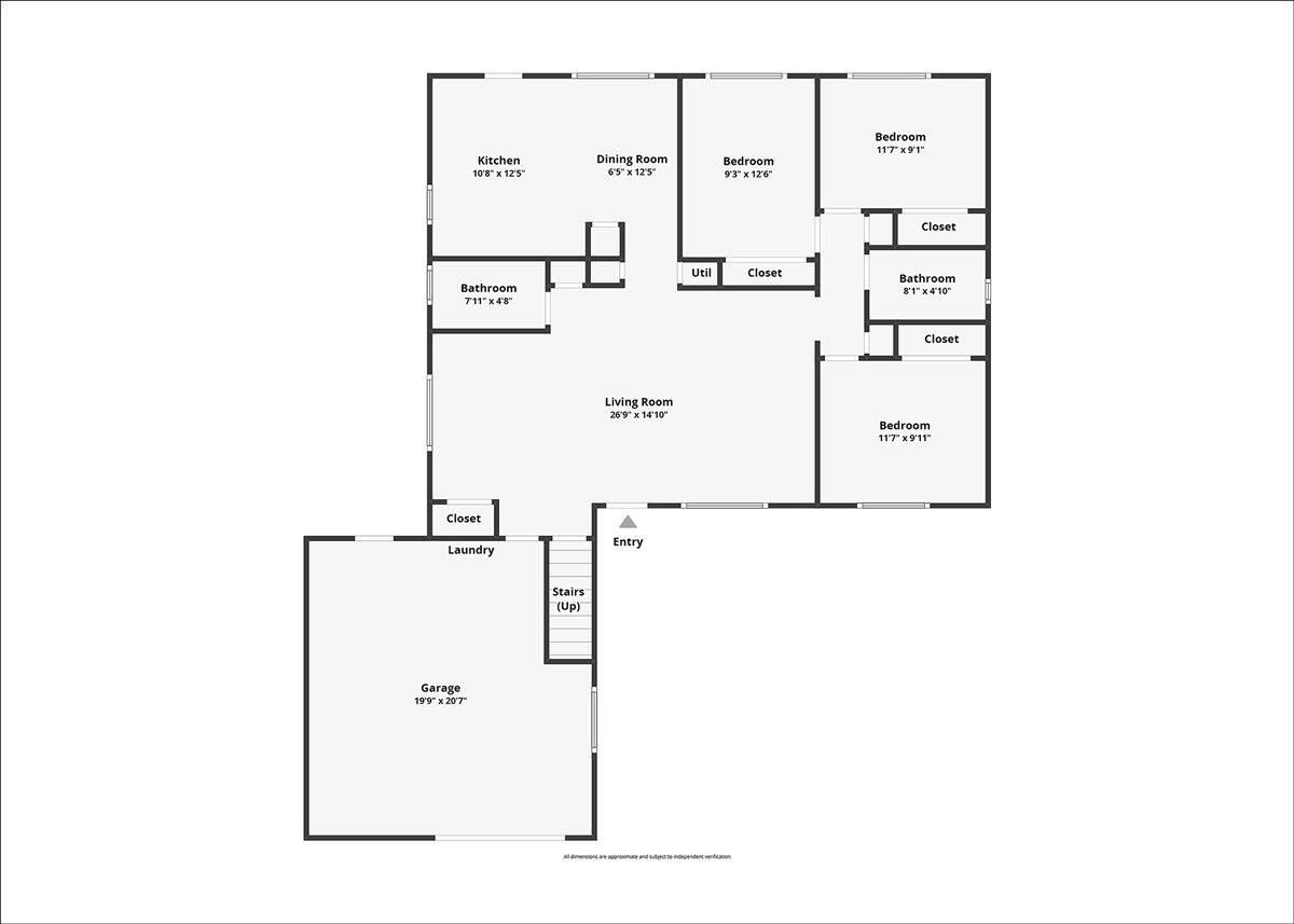
Light-filled comfort in a prime location! This spacious 4-bedroom, 3-bath home blends convenience with charm, featuring an open floor plan and beautiful bamboo floors throughout. Three bedrooms and two baths are located on one side of the home, with the primary suite privately set apart on the other for separation and comfort. A tall privacy hedge in front creates a welcoming sense of seclusion, while the backyard offers the perfect mix of relaxation and fun—ideal for quiet evenings, BBQs, or entertaining friends. All of this within walking distance to the plaza, local shops, and a neighborhood park, plus just a short drive to HSU. A fantastic place to call home or an excellent investment opportunity. Schedule your showing today.

Light-filled comfort in a prime location! This spacious 4-bedroom, 3-bath home blends convenience with charm, featuring an open floor plan and beautiful bamboo floors throughout. Three bedrooms and two baths are located on one side of the home, with the primary suite privately set apart on the other for separation and comfort. A tall privacy hedge in front creates a welcoming sense of seclusion, while the backyard offers the perfect mix of relaxation and fun—ideal for quiet evenings, BBQs, or entertaining friends. All of this within walking distance to the plaza, local shops, and a neighborhood park, plus just a short drive to HSU. A fantastic place to call home or an excellent investment opportunity. Schedule your showing today.

Light-filled comfort in a prime location! This spacious 4-bedroom, 3-bath home blends convenience with charm, featuring an open floor plan and beautiful bamboo floors throughout. Three bedrooms and two baths are located on one side of the home, with the primary suite privately set apart on the other for separation and comfort. A tall privacy hedge in front creates a welcoming sense of seclusion, while the backyard offers the perfect mix of relaxation and fun—ideal for quiet evenings, BBQs, or entertaining friends. All of this within walking distance to the plaza, local shops, and a neighborhood park, plus just a short drive to HSU. A fantastic place to call home or an excellent investment opportunity. Schedule your showing today.

Listing courtesy of

Listing courtesy of

Listing courtesy of

Interested in this home?

Stay in control of how, when, and where your home is marketed with a strategy tailored to fit your needs.

By submitting this form you agree that Forbes & Associates - Sarah Corliss, its affiliates or associated third parties may contact you, including with calls or texts by automated means. You also agree to our Terms of Service and Privacy Policy. Message/data rates may apply. Consent is not a condition to access real estate services.

Interested in this home?

Stay in control of how, when, and where your home is marketed with a strategy tailored to fit your needs.

By submitting this form you agree that Forbes & Associates - Sarah Corliss, its affiliates or associated third parties may contact you, including with calls or texts by automated means. You also agree to our Terms of Service and Privacy Policy. Message/data rates may apply. Consent is not a condition to access real estate services.

Interested in this home?

Stay in control of how, when, and where your home is marketed with a strategy tailored to fit your needs.

By submitting this form you agree that Forbes & Associates - Sarah Corliss, its affiliates or associated third parties may contact you, including with calls or texts by automated means. You also agree to our Terms of Service and Privacy Policy. Message/data rates may apply. Consent is not a condition to access real estate services.

Lear More About

The Area

Arcata

Arcata offers the quaintness of a small town, the vibrancy of a college town, and the almost-too-good-to-be-true accessibility of both ocean beaches and ancient redwood forests. These characteristics make it one of Humboldt County's most desired real estate markets.

b

Testimonials

Our Clients

Our clients consistently share that working with our team feels personal, professional, and truly supportive. From helping sellers get offers after months on the market to guiding first-time buyers through every step, our agents are praised for their local expertise, responsiveness, and genuine care for every client’s goals.

Q

FREQUENT QUESTIONS

Frequently Asked Questions

Have questions about buying or selling a home? These are the most common ones to help you navigate the process with ease. If you need more details, feel free to reach out!

Where do I begin with home searching?

Will I receive alerts when homes hit the market?

Do you work with first-time buyers?

How much should I budget for closing costs?

Do you help with inspections and referrals to local services?

How soon can I view homes in person?

Q

FREQUENT QUESTIONS

Frequently Asked Questions

Have questions about buying or selling a home? These are the most common ones to help you navigate the process with ease. If you need more details, feel free to reach out!

Where do I begin with home searching?

Will I receive alerts when homes hit the market?

Do you work with first-time buyers?

How much should I budget for closing costs?

Do you help with inspections and referrals to local services?

How soon can I view homes in person?

Q

FREQUENT QUESTIONS

Frequently Asked Questions

Have questions about buying or selling a home? These are the most common ones to help you navigate the process with ease. If you need more details, feel free to reach out!

Where do I begin with home searching?

Will I receive alerts when homes hit the market?

Do you work with first-time buyers?

How much should I budget for closing costs?

Do you help with inspections and referrals to local services?

How soon can I view homes in person?