14 Crab St, King Salmon South, CA, 95503






14 Crab St, King Salmon South, CA, 95503

14 Crab St, King Salmon South, CA, 95503








Your Trusted
Real Estate Agent
Price:
Price:
Price:
$539,000.00
$539,000.00
$539,000.00
General
Information
General
Information
General
Information
1
1
1
Beds
Beds
Beds
2
2
2
Baths
Baths
Baths
1,631
1,631
1,631
Sq. Ft.
Sq. Ft.
Sq. Ft.
0.06
0.06
0.06
Lot Size
Lot Size
Lot Size
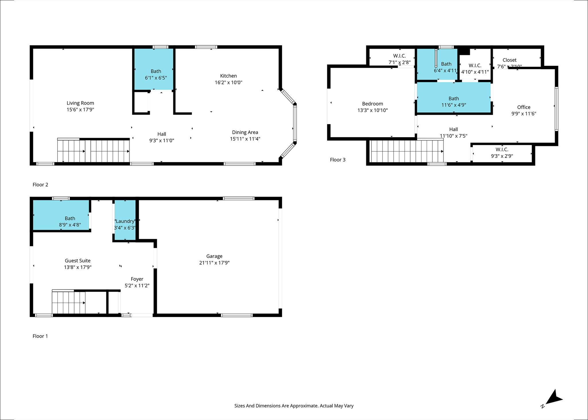
Live on the waterfront in King Salmon's unique canal community, where you can boat from your private dock straight to the bay or ocean. Custom-built in 2009, this 3-story home is currently a 1-bed, 2.5-bath but could easily be converted to two bedrooms. Its flexible layout and prime waterfront setting give it excellent short-term rental potential. With the ability to comfortably accommodate 8+ guests, it's an ideal hub for visitors attending Humboldt's many tourist attractions like Oyster Fest, Arts Alive, or our National and State Parks. The first floor offers a 2-car garage, full bath, laundry, and a versatile bonus room with deck access. Upstairs, the kitchen features granite countertops, oak cabinetry, and hardwood dining area, opening to a cozy living room and balcony. The top floor primary suite boasts ocean views galore, dual-sink bath, walk-in closet, a second balcony, and an office that could be a future bedroom space. Enjoy beautiful oak finishes, cul-de-sac privacy, and views of the hills, bay, and 4th of July fireworks all just a minute from Eureka. This property offers great bay access and plenty of nature and recreation amenities.
Live on the waterfront in King Salmon's unique canal community, where you can boat from your private dock straight to the bay or ocean. Custom-built in 2009, this 3-story home is currently a 1-bed, 2.5-bath but could easily be converted to two bedrooms. Its flexible layout and prime waterfront setting give it excellent short-term rental potential. With the ability to comfortably accommodate 8+ guests, it's an ideal hub for visitors attending Humboldt's many tourist attractions like Oyster Fest, Arts Alive, or our National and State Parks. The first floor offers a 2-car garage, full bath, laundry, and a versatile bonus room with deck access. Upstairs, the kitchen features granite countertops, oak cabinetry, and hardwood dining area, opening to a cozy living room and balcony. The top floor primary suite boasts ocean views galore, dual-sink bath, walk-in closet, a second balcony, and an office that could be a future bedroom space. Enjoy beautiful oak finishes, cul-de-sac privacy, and views of the hills, bay, and 4th of July fireworks all just a minute from Eureka. This property offers great bay access and plenty of nature and recreation amenities.
Live on the waterfront in King Salmon's unique canal community, where you can boat from your private dock straight to the bay or ocean. Custom-built in 2009, this 3-story home is currently a 1-bed, 2.5-bath but could easily be converted to two bedrooms. Its flexible layout and prime waterfront setting give it excellent short-term rental potential. With the ability to comfortably accommodate 8+ guests, it's an ideal hub for visitors attending Humboldt's many tourist attractions like Oyster Fest, Arts Alive, or our National and State Parks. The first floor offers a 2-car garage, full bath, laundry, and a versatile bonus room with deck access. Upstairs, the kitchen features granite countertops, oak cabinetry, and hardwood dining area, opening to a cozy living room and balcony. The top floor primary suite boasts ocean views galore, dual-sink bath, walk-in closet, a second balcony, and an office that could be a future bedroom space. Enjoy beautiful oak finishes, cul-de-sac privacy, and views of the hills, bay, and 4th of July fireworks all just a minute from Eureka. This property offers great bay access and plenty of nature and recreation amenities.










Listing courtesy of RE/MAX Humboldt Realty.
Listing courtesy of RE/MAX Humboldt Realty.
Listing courtesy of RE/MAX Humboldt Realty.
Interested in this home?
Stay in control of how, when, and where your home is marketed with a strategy tailored to fit your needs.
Interested in this home?
Stay in control of how, when, and where your home is marketed with a strategy tailored to fit your needs.
Interested in this home?
Stay in control of how, when, and where your home is marketed with a strategy tailored to fit your needs.

b
Testimonials
Our Clients
Our clients consistently share that working with our team feels personal, professional, and truly supportive. From helping sellers get offers after months on the market to guiding first-time buyers through every step, our agents are praised for their local expertise, responsiveness, and genuine care for every client’s goals.
Q
FREQUENT QUESTIONS
Frequently Asked Questions
Have questions about buying or selling a home? These are the most common ones to help you navigate the process with ease. If you need more details, feel free to reach out!
Where do I begin with home searching?
Will I receive alerts when homes hit the market?
Do you work with first-time buyers?
How much should I budget for closing costs?
Do you help with inspections and referrals to local services?
How soon can I view homes in person?
Q
FREQUENT QUESTIONS
Frequently Asked Questions
Have questions about buying or selling a home? These are the most common ones to help you navigate the process with ease. If you need more details, feel free to reach out!
Where do I begin with home searching?
Will I receive alerts when homes hit the market?
Do you work with first-time buyers?
How much should I budget for closing costs?
Do you help with inspections and referrals to local services?
How soon can I view homes in person?
Q
FREQUENT QUESTIONS
Frequently Asked Questions
Have questions about buying or selling a home? These are the most common ones to help you navigate the process with ease. If you need more details, feel free to reach out!
Where do I begin with home searching?
Will I receive alerts when homes hit the market?
Do you work with first-time buyers?
How much should I budget for closing costs?
Do you help with inspections and referrals to local services?
How soon can I view homes in person?
