1090 Murray Rd 67, McKinleyville, CA, 95519






1090 Murray Rd 67, McKinleyville, CA, 95519

1090 Murray Rd 67, McKinleyville, CA, 95519








Your Trusted
Real Estate Agent
Price:
Price:
Price:
$249,000.00
$249,000.00
$249,000.00
General
Information
General
Information
General
Information
2
2
2
Beds
Beds
Beds
2
2
2
Baths
Baths
Baths
1,568
1,568
1,568
Sq. Ft.
Sq. Ft.
Sq. Ft.
0
0
0
Lot Size
Lot Size
Lot Size
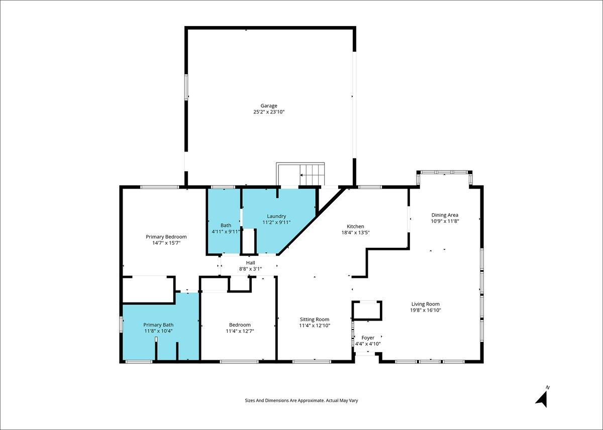
Welcome to this beautifully maintained 2-bedroom, 2-bath manufactured home offering 1,568 sq ft of comfortable living in the desirable Ocean West 55+ community. Thoughtfully designed with a well-defined floor plan, this home features light-filled living spaces that feel both spacious and inviting. The generous primary suite includes a private bath and ample closet space, while the second bedroom and bathroom provide flexibility for guests, hobbies, or a home office. Distinct yet connected living, dining, and kitchen areas create a functional layout that offers comfort, privacy, and ease of living. Enjoy the peaceful coastal lifestyle Ocean West is known for, with beautifully maintained grounds and a welcoming community atmosphere.
Welcome to this beautifully maintained 2-bedroom, 2-bath manufactured home offering 1,568 sq ft of comfortable living in the desirable Ocean West 55+ community. Thoughtfully designed with a well-defined floor plan, this home features light-filled living spaces that feel both spacious and inviting. The generous primary suite includes a private bath and ample closet space, while the second bedroom and bathroom provide flexibility for guests, hobbies, or a home office. Distinct yet connected living, dining, and kitchen areas create a functional layout that offers comfort, privacy, and ease of living. Enjoy the peaceful coastal lifestyle Ocean West is known for, with beautifully maintained grounds and a welcoming community atmosphere.
Welcome to this beautifully maintained 2-bedroom, 2-bath manufactured home offering 1,568 sq ft of comfortable living in the desirable Ocean West 55+ community. Thoughtfully designed with a well-defined floor plan, this home features light-filled living spaces that feel both spacious and inviting. The generous primary suite includes a private bath and ample closet space, while the second bedroom and bathroom provide flexibility for guests, hobbies, or a home office. Distinct yet connected living, dining, and kitchen areas create a functional layout that offers comfort, privacy, and ease of living. Enjoy the peaceful coastal lifestyle Ocean West is known for, with beautifully maintained grounds and a welcoming community atmosphere.










Listing courtesy of
Listing courtesy of
Listing courtesy of
Interested in this home?
Stay in control of how, when, and where your home is marketed with a strategy tailored to fit your needs.
Interested in this home?
Stay in control of how, when, and where your home is marketed with a strategy tailored to fit your needs.
Interested in this home?
Stay in control of how, when, and where your home is marketed with a strategy tailored to fit your needs.
Lear More About
The Area
McKinleyville
Buyers from all over Humboldt County are drawn to McKinleyville for its combination of ocean views, beaches, and basics—the town has everything you would need to live in a practical, comfortable way.

b
Testimonials
Our Clients
Our clients consistently share that working with our team feels personal, professional, and truly supportive. From helping sellers get offers after months on the market to guiding first-time buyers through every step, our agents are praised for their local expertise, responsiveness, and genuine care for every client’s goals.
Q
FREQUENT QUESTIONS
Frequently Asked Questions
Have questions about buying or selling a home? These are the most common ones to help you navigate the process with ease. If you need more details, feel free to reach out!
Where do I begin with home searching?
Will I receive alerts when homes hit the market?
Do you work with first-time buyers?
How much should I budget for closing costs?
Do you help with inspections and referrals to local services?
How soon can I view homes in person?
Q
FREQUENT QUESTIONS
Frequently Asked Questions
Have questions about buying or selling a home? These are the most common ones to help you navigate the process with ease. If you need more details, feel free to reach out!
Where do I begin with home searching?
Will I receive alerts when homes hit the market?
Do you work with first-time buyers?
How much should I budget for closing costs?
Do you help with inspections and referrals to local services?
How soon can I view homes in person?
Q
FREQUENT QUESTIONS
Frequently Asked Questions
Have questions about buying or selling a home? These are the most common ones to help you navigate the process with ease. If you need more details, feel free to reach out!
Where do I begin with home searching?
Will I receive alerts when homes hit the market?
Do you work with first-time buyers?
How much should I budget for closing costs?
Do you help with inspections and referrals to local services?
How soon can I view homes in person?


